Kratos Safety
EasySafeWay 2 - Pole hoist for confined space entry, retrieval and res
EasySafeWay 2 - Pole winch for access, extraction and rescue in confined spaces
The EasySafeWay 2 from Kratos Safety is an innovative pole winch specifically designed for safe access, extraction and rescue in confined spaces where standard anchorage systems cannot be used due to limited height. Can be used with work and rescue winch or fall arrest harness with integrated rescue winch.
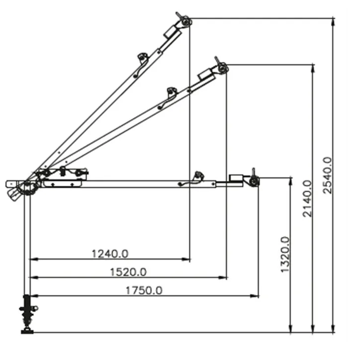
Rod winch arm adjustable at 3 heights:
- 1.32 m / 2.14 m / 2.54 m (non-extended arm)
- 1.32 m / 2.54 m / 3.14 m (extended arm)
Facts and figures
- Material: Aluminium for high strength and low weight
- Weight: 13.20 kg
- Maximum load capacity: 500 kg
31 520 SEK incl. VAT
Product to order
| Article number | FA6010600 |
|---|---|
| Trade mark | Kratos Safety |
| Category | Tripod & quadpod |
| EAN | 3700671407081 |
