Kratos Safety
EasySafeWay 1 - Mobile H-shaped base davit system (column height 915 m
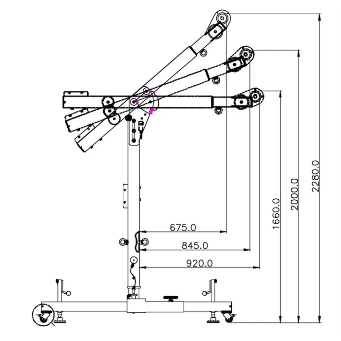
The EasySafeWay 1 mobile H-shaped davit system (915 mm high column) from Kratos Safety is designed for safe access in confined spaces with large openings. The mobile H-shaped davit system rotates 360 degrees even when loaded. The components can be easily assembled together for safe access in confined spaces with large openings. The system consists of:
Components
- FA6010504 - Davit column, height 915 mm
- FA6010505 - Davit arm
- FA6010506 - H-shaped base
Specifications
- Material: aluminium
- Weight: 58.35 kg
- Maximum load capacity: 500 kg
- Complies with: EN 795:2012 Type B with anchor point resistance > 12 kN
99 632 SEK incl. VAT
Product to order
| Article number | FA6010507 |
|---|---|
| Trade mark | Kratos Safety |
| Category | Tripod & quadpod |
| EAN | 3700671407531 |
